 Lancia Delta: Sostituzione fusibili
Lancia Delta: Sostituzione fusibiliGENERALITÀ
I fusibili proteggono l’impianto elettrico intervenendo in caso di avaria od intervento improprio sull’impianto stesso.
Quando un dispositivo non funziona, occorre pertanto verificare l’efficienza del relativo fusibile di protezione: l’elemento conduttore A-fig. 37 non deve essere interrotto.
In caso contrario occorre sostituire il fusibile bruciato con un altro avente lo stesso amperaggio (stesso colore).
B fusibile integro.
C fusibile con elemento conduttore interrotto.
Per sostituire un fusibile utilizzare la pinzetta D-fig. 37 agganciata alla centralina della plancia.
Per l’individuazione del fusibile di protezione, consultare le tabelle riportate nelle pagine seguenti.

| Nel caso il fusibile dovesse ulteriormente interrompersi, rivolgersi alla Rete Assistenziale Lancia. | 
| Non sostituire mai un fusibile guasto con fili metallici o altro materiale di recupero. | 
| Non sostituire in alcun caso un fusibile con un altro avente amperaggio superiore; PERICOLO DI INCENDIO. | 
| Se un fusibile generale di protezione (MEGAFUSE, MIDI-FUSE, MAXI-FUSE) interviene rivolgersi alla Rete Assistenziale Lancia. | 
| Prima di sostituire un fusibile, accertarsi di aver tolto la chiave dal dispositivo di avviamento e di aver spento e/o disinserito tutti gli utilizzatori. | 
| Se un fusibile generale di protezione sistemi di sicurezza (sistema air bag, sistema frenante), sistemi motopropulsore (sistema motore, sistema cambio), sistema sospensioni attive (per versioni/mercati, dove previsto) o sistema guida interviene rivolgersi alla Rete Assistenziale Lancia. | 
POSIZIONE DEI FUSIBILI
Centralina fusibili plancia Per accedere alla centralina portafusibili su plancia portastrumenti occorre svitare le tre viti A-fig. 38 e togliere lo sportello B.


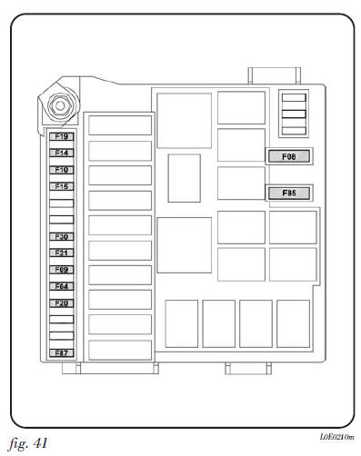
Centralina fusibili vano motore fig. 40 e 41 Una seconda centralina è posta sul lato destro del vano motore, a fianco della batteria, per accedervi svincolare le linguette laterali ed asportare il coperchio L. La numerazione che individua il particolare elettrico corrispondente ad ogni fusibile è visibile sul retro del coperchio.

| Se necessita effettuare un lavaggio del vano motore, avere cura di non insistere direttamente con getto d’acqua sulla centralina vano motore. | 

Centralina fusibili vano baule fig. 42 e 43 Per accedere alla centralina portafusibili ubicata sul lato sinistro del vano baule, occorre aprire l’apposito sportellino di ispezione fig. 42.


TABELLA RIASSUNTIVA FUSIBILI



Hyundai i30. Filtro del carburante (per motore diesel)
   	Drenaggio dell'acqua dal filtro del carburante
Nel motore diesel il filtro combustibile svolge la funzione critica di 
separare l'acqua dai combustibili e di accumulare l'acqua sul suo fondo.
Qua ...
   	
Citroën C4. Appoggiagomito anteriore
   	Dispositivo per il confort del guidatore e del passeggero anteriore.
Il coperchio dell'appoggiagomito è regolabile in altezza e lunghezza.
Regolazione in altezza
	Sollevare il coperchio fino ...
   	
Mercedes-Benz Classe C. Avvertenze generali
   	Il sistema di regolazione autonoma della distanza DISTRONIC 
				regola la velocità e supporta il guidatore consentendo di 
				mantenere automaticamente la distanza impostata dal veicolo che ...